Aan de Sint Catharinastraat 2 in Elsloo staat deze vrijstaande hoekwoning boordevol karakter en mogelijkheden. Een woning met authentieke details zoals glas-in-loodramen, een royale indeling en een fijne tuin, die vraagt om modernisatie maar daar ook veel voor teruggeeft. Een ideale kans voor wie een woning naar eigen smaak en wensen wil transformeren tot een eigentijds thuis.
Indeling
Binnenkomst
Via de entree betreedt u de lichte hal met natuurstenen vloer en fraaie glas-in-loodramen. Vanuit hier heeft u toegang tot de meterkast, de woonkamer, de keuken en het half betegelde toilet met fontein.
Woonkamer
Vanuit de keuken is de doorzonwoonkamer bereikbaar, voorzien van een parketvloer en een prettige lichtinval. Aan de achterzijde is de woning uitgebouwd; deze aanbouw beschikt over een schuifpui en een lichtkoepel. Vanuit de aanbouw bereikt u aan de ene zijde de serre, gelegen aan de straatzijde, en aan de andere zijde een extra kamer die momenteel dienstdoet als bijkeuken en is voorzien van een wasbak.
Keuken
De keuken is zowel via de hal als via de woonkamer bereikbaar. Deze is netjes uitgevoerd en voorzien van dezelfde natuurstenen vloer als de entree. De keuken beschikt over diverse inbouwapparatuur, waaronder een vaatwasser, 4-pits gaskookplaat, RVS afzuigkap, oven en koelkast. Vanuit de keuken heeft u inpandig toegang tot de garage.
Garage
De royale garage is maar liefst ca. 10 meter lang en biedt volop bergruimte. Daarnaast is er een praktische kelder aanwezig, ideaal voor extra opslag. De garage is uitgerust met een elektrische sectionaalpoort met loopdeur en beschikt over elektriciteit en water.
Tuin
De achtertuin is bereikbaar via de garage, de serre en de schuifpui in de aanbouw. De tuin is gelegen op het oosten en bestaat uit een beklinkerd looppad en een gazon: een fijne basis om naar eigen inzicht verder aan te leggen.
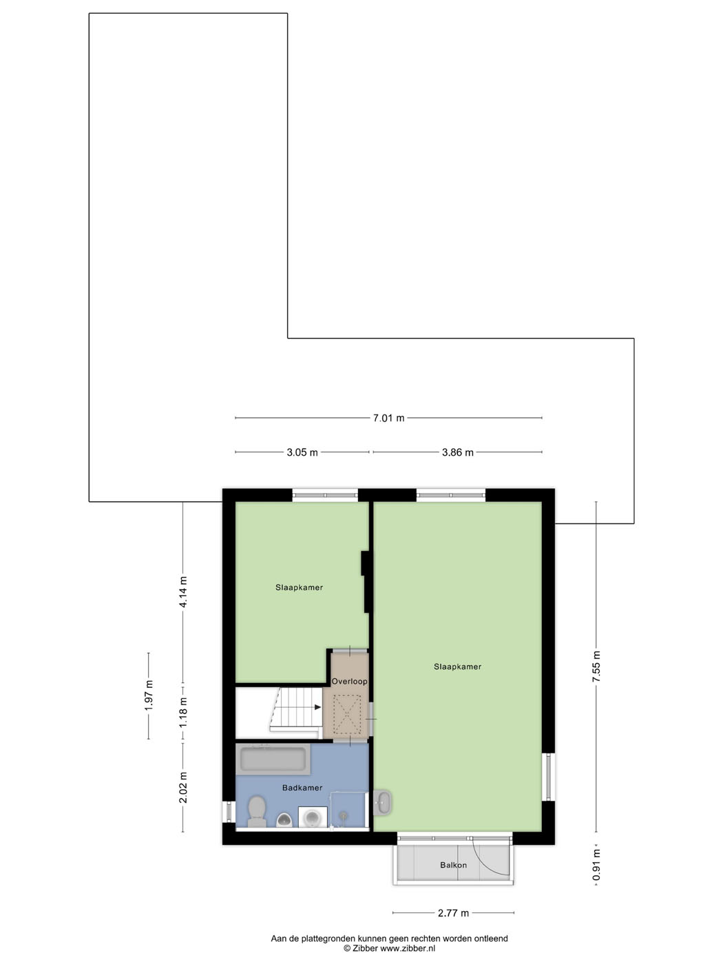
Eerste verdieping
Via een houten trap bereikt u de overloop, die toegang geeft tot twee slaapkamers en de badkamer.
De master bedroom is zeer royaal (ca. 7,55 m x 3,86 m) en beschikt over een balkon aan de voorzijde. De kamer is voorzien van een parketvloer en kunststof kozijnen. Indien gewenst is deze kamer eenvoudig op te splitsen in twee slaapkamers. Het raam aan de achterzijde is voorzien van een rolluik. De andere slaapkamer is uitgerust met een laminaat vloer en heeft eveneens kunststof kozijnen.
Badkamer
De volledig betegelde badkamer is inmiddels gedateerd, maar beschikt wel over een complete en functionele indeling. De ruimte is uitgerust met een douche, een ligbad, een toilet, een bidet en een wastafel. Dankzij deze royale opzet en de aanwezige voorzieningen biedt de badkamer volop mogelijkheden om na renovatie te worden omgevormd tot een moderne, comfortabele en stijlvolle badkamer die volledig aansluit bij de woonwensen van nu.
Zolderverdieping
De zolder is bereikbaar via een praktische vlizotrap en biedt verrassend veel ruimte en mogelijkheden. Momenteel wordt deze verdieping gebruikt als bergzolder. Dankzij de royale afmetingen en de aanwezige hoogte leent de zolder zich echter uitstekend voor het creëren van extra woonruimte, zoals een extra slaapkamer, werkkamer of hobbyruimte. Op zolder bevindt zich tevens de cv-ketel (Bosch, 2014, huur).
Ligging
De woning is gelegen in het charmante en historische Elsloo, met voorzieningen zoals winkels, scholen en horeca op korte afstand. Daarnaast zijn natuurgebieden, wandelroutes en uitvalswegen richting Maastricht, Sittard en België uitstekend bereikbaar. Een prettige woonomgeving met een dorps karakter en toch centraal gelegen.
Kortom: een vrijstaande woning met authentieke details, een royale indeling en volop potentie voor wie niet terugdeinst voor modernisatie en graag zijn eigen woonwensen wil realiseren.
Nieuwsgierig geworden? Neem dan contact met ons op en plan een bezichtiging. Wij laten u deze woning graag persoonlijk ervaren.
Algemeen:
Ter bescherming van de belangen van zowel koper als verkoper, wordt uitdrukkelijk gesteld dat een koopovereenkomst met betrekking tot deze onroerende zaak eerst dan tot stand komt nadat koper en verkoper de koopovereenkomst hebben getekend (“schriftelijkheidsvereiste”).
De termijn die wordt opgenomen voor eventuele (overeengekomen) ontbindende voorwaarden (bv. financiering) is in de regel 4 tot 6 weken na het sluiten van de mondelinge wilsovereenkomst.
De waarborgsom/bankgarantie is 10% van de koopsom. De koper dient deze 2 weken ná het vervallen van de ontbindende voorwaarden bij de desbetreffende notaris te deponeren.
Koper is te allen tijde gerechtigd voor eigen rekening een bouwkundige keuring te (laten) verrichten dan wel andere adviseurs te raadplegen teneinde een goed inzicht te verkrijgen over de staat van onderhoud.
Bij woningen van 30 jaar of ouder wordt standaard een ouderdomsclausule opgenomen in de koopovereenkomst.
Deze informatie is door ons met de nodige zorgvuldigheid samengesteld. Onzerzijds wordt echter geen enkele aansprakelijkheid aanvaard voor enige onvolledigheid, onjuistheid of anderszins, dan wel de gevolgen daarvan. Alle opgegeven maten en oppervlakten zijn indicatief.













































